Gables Wahroonga

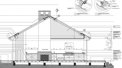
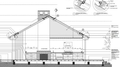
This project transformed a dated family home with an existing tennis court and pool into a generous entertainer’s paradise. Retaining the best parts of the property, this design reimagined how the home could connect to the outdoor areas and garden. The garage was relocated below the garden level, allowing a generous outdoor living area to take centre-stage. Sheltered under the original gable roof these areas connect to the garden, pool and tennis court and provide thermal comfort throughout the year.

An additional storey of bedrooms and bathrooms within the original roof space have doubled the amount of accommodation and floor space to create a generous, impressive and beautiful family oasis.

DATE:
2015

LOCATION:
WAHROONGA, SYDNEY

project story

The project transformed a dated family home with existing tennis court and pool into a generous entertainer’s paradise.

PHOTOGRAPHY:
JASMIN LAMOUREUX

JOINERY:
CARAVELLO JOINERY