Beauty Point

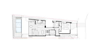
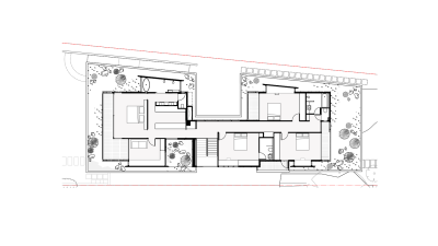
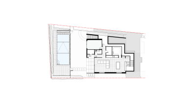
This project is a modern family home with spectacular views over Middle Harbour. The site slopes gently to the rear boundary and has a northern aspect.

Having designed a previous new home for this family of five, we had a clear understanding of their likes and dislikes. The home is pared back and functional, including separate living areas for teenagers adjacent to the pool, open plan living and entertaining areas facing the view and a separate parents retreat.

The materials are a combination of off-form concrete, brick and sandstone paired with recycled timber and plywood elements to provide warmth and texture. All the joinery, lighting and interiors were designed and documented by Utz Sanby.

DATE:
2023

LOCATION:
BEAUTY POINT, SYDNEY

project story

A modern family home with spectacular views over Middle Harbour.

BUILDER:
BUILTFORM

ENGINEER:
BIRZULIS ASSOCIATES

HYDRAULIC:
AJ WHIPPS CONSULTING GROUP

LANDSCAPE DESIGN:
KATHERINE MARDEN LANDSCAPE DESIGN

LANDSCAPE:
BATES LANDSCAPE

JOINERY:
SCARELLI JOINERY

POOL:
PREMIER POOLS

WINDOWS AND DOORS:
A&G ARCHITECTURAL ALUMINIUM AND GLASS

PHOTOGRAPHY:
MARIAN RIABIC